FIRST YEAR, Term 1 Brief 1: Built Exemplars
5 Weeks , October – November 2021.
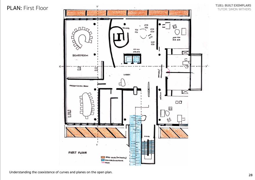
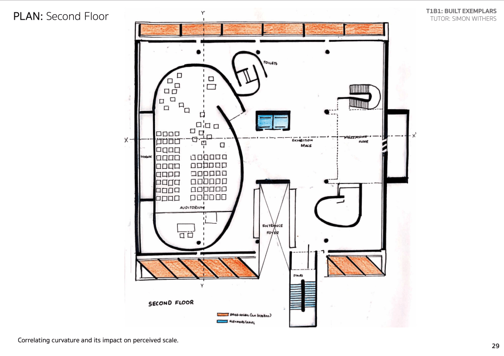
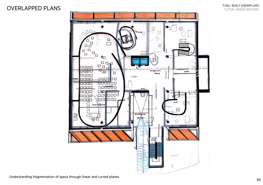
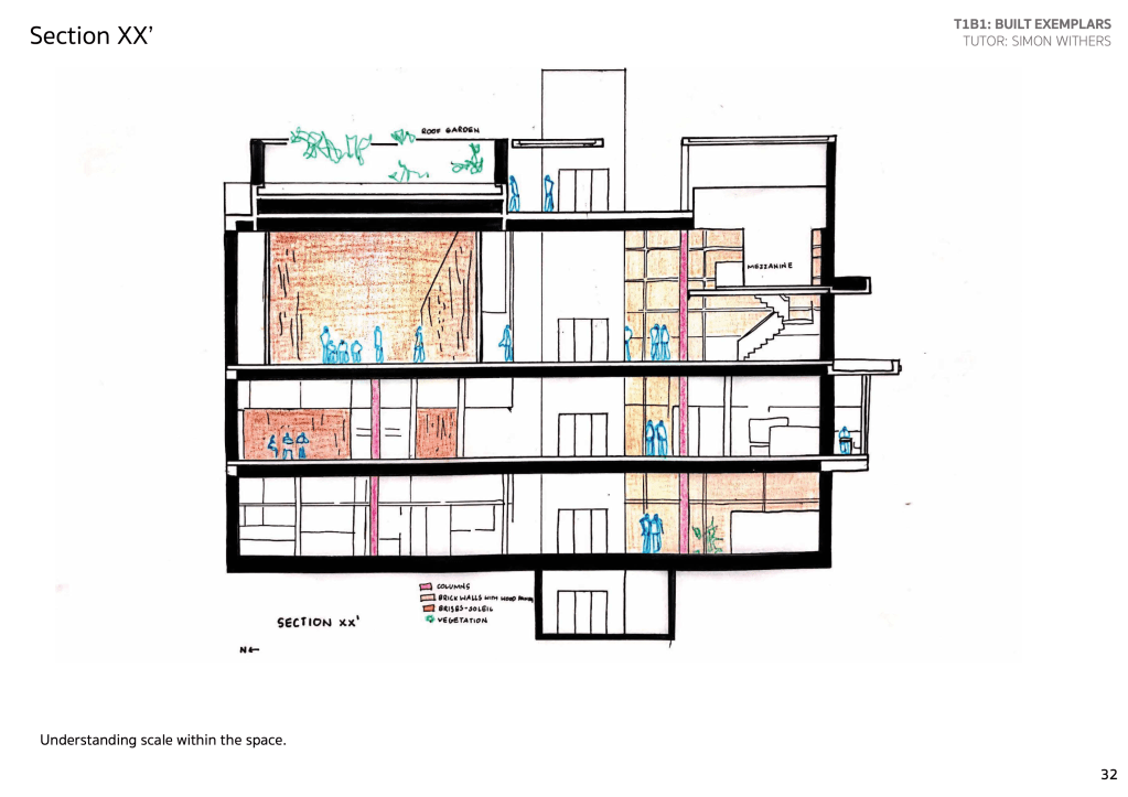
This brief aimed to introduce us to the architectural profession through the exploration of existing case studies. We studied multiple case studies through drawings and diagrams.
The drawings are extremely diagrammatic since this was my first attempt at creating / replicating architectural drawings.
Case Study 1: Zollverein School of Management and Design, Germany.
Architect: SANAA
Year: 2006
Case Study 2: Reflection of Mineral, Japan.
Architect: Atelier Tekuto
Year: 2006
Case Study 3: Mill Owners Association Building, India.
Architect: Le Corbusier
Year: 1954
Case Study 4: Casa Malaparte, Italy.
Architect: Adalberto Libera
Year: 1973
Case Study 5: Qatar National Library, Qatar.
Architect: OMA
Year: 2017
Digital Submission
Aim: Introduction to CAD Drawings.
Task: Choose any one case study. Make a plan and an elevation. Choose a section cut that you have not studied. Create a section based on the plans.















































